Negozio in affitto San Prospero (MO) - Centro
Rif.AA805 | 62 mq | bagni: 1 | € 550
Descrizione
PROCASA SoloAffitti propone in locazione ottimo locale commerciale di medie dimensioni con vetrina in zona di intenso passaggio, perfetto per varie attività commerciali.
Si compone di:
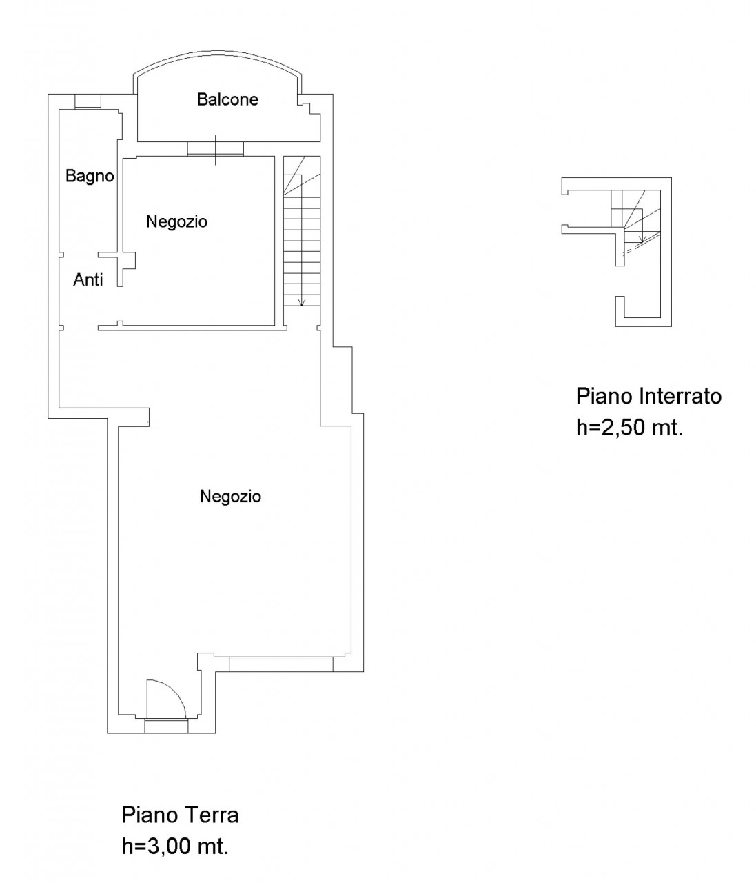
Negozio al piano terra diviso in due locali oltre al bagno, circa 60mq
Possibilità extra - box auto 20mq interrato collegato al locale tramite scala interna
La soluzione si presenta in ottimo stato, ora adibita ad ufficio ma si presta per tante attività anche per clientela numerosa (gelateria, caf, associazioni ecc... )
Palazzina del 2003 con riscaldamento e raffrescamento tramite split.
Dettagli
| Anno di costruzione: | 2003 |
| Prezzo: | € 550 |
| Spese condominiali: | € 50 |
| Esposizione: | est |
| Metri quadri: | 62 mq |
| bagni: | 1 |
| Classe energetica: |
I.P.E. in fase di definizione |
| numero portoni: | 1 |
| numero vetrine: | 2 |
| totale piani: | 2 |
Ambienti: | |
Comfort: | |
Livelli: | |
| Comune: | San Prospero |
| Indirizzo: | Via Pietro Nenni |
















